Lightfall House
Location
Beijing, China
Programme
Private Residence
Client
Private
Work Scope
Interior Design: Concept, SD, DD, CD, CA
Current Status
Completed
Nestled at the foot of the Yanshan Mountains in Beijing’s northern suburbs, the Lightfall House responds to the challenges of a typical stock residential layout—deep floor plans and limited natural light—by redefining the relationship between indoors and outdoors. Through careful sectional design and a layered approach to light, the architects maximize natural illumination and spatial fluidity, turning a conventional house into a vertical study of light and space.
Nestled at the foot of the Yanshan Mountains in Beijing’s northern suburbs, the Lightfall House responds to the challenges of a typical stock residential layout—deep floor plans and limited natural light—by redefining the relationship between indoors and outdoors.
Through careful sectional design and a layered approach to light, the architects maximize natural illumination and spatial fluidity, turning a conventional house into a vertical study of light and space.
Layered Light: A Vertical Experiment
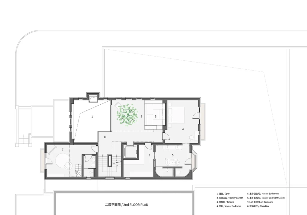
Natural light serves as the project’s primary spatial strategy. Organized along a vertical axis, the interior is divided into “core daylight zones” and “passive diffusion areas” based on light intensity and function.
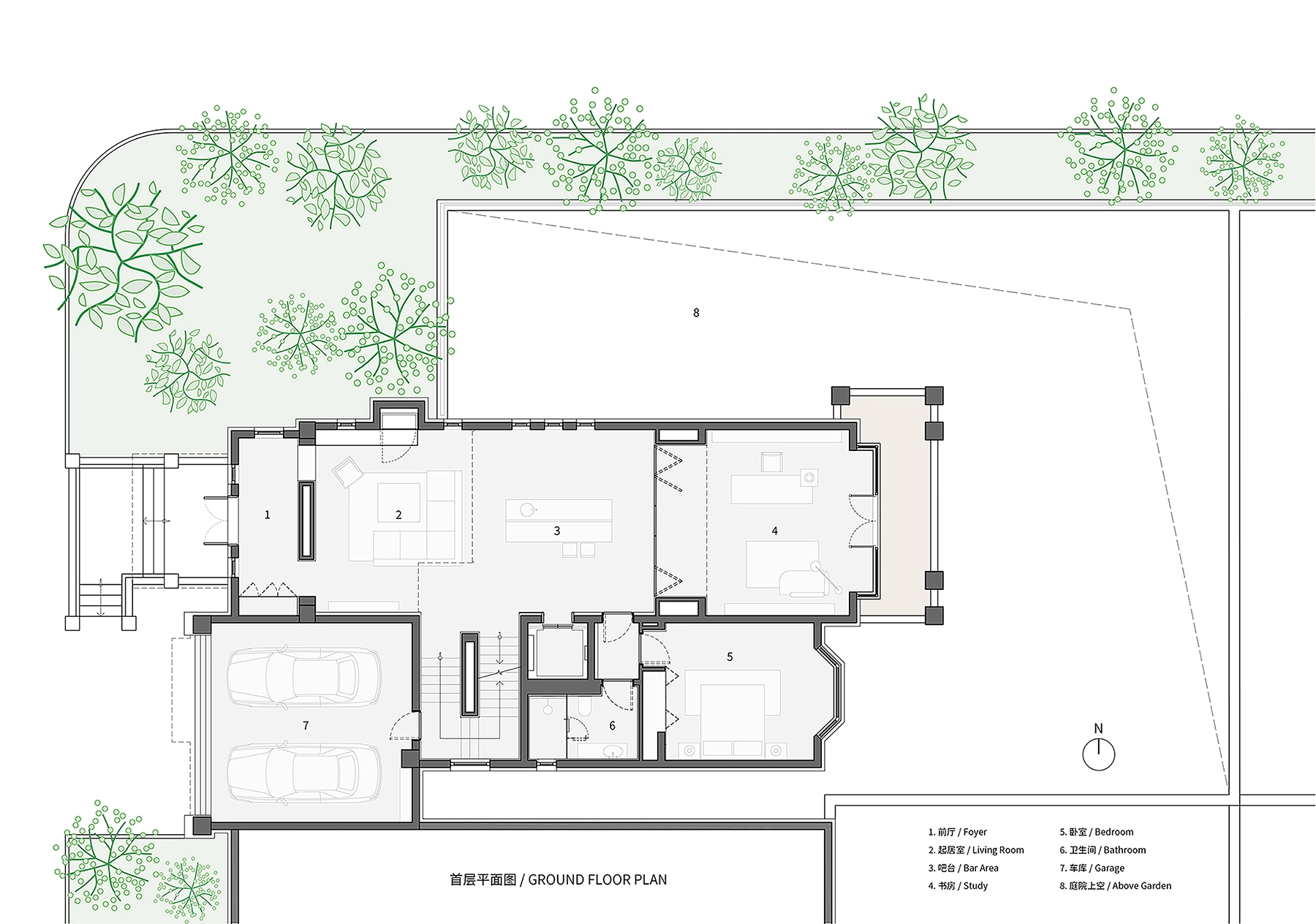
Highly frequented areas such as the dining area, kitchen, and master bedroom are positioned along the southern edge, engaging directly with a sunken courtyard
A double-height indoor garden on the second floor acts as a vertical light well, functioning as a “vessel of illumination” that connects all levels.
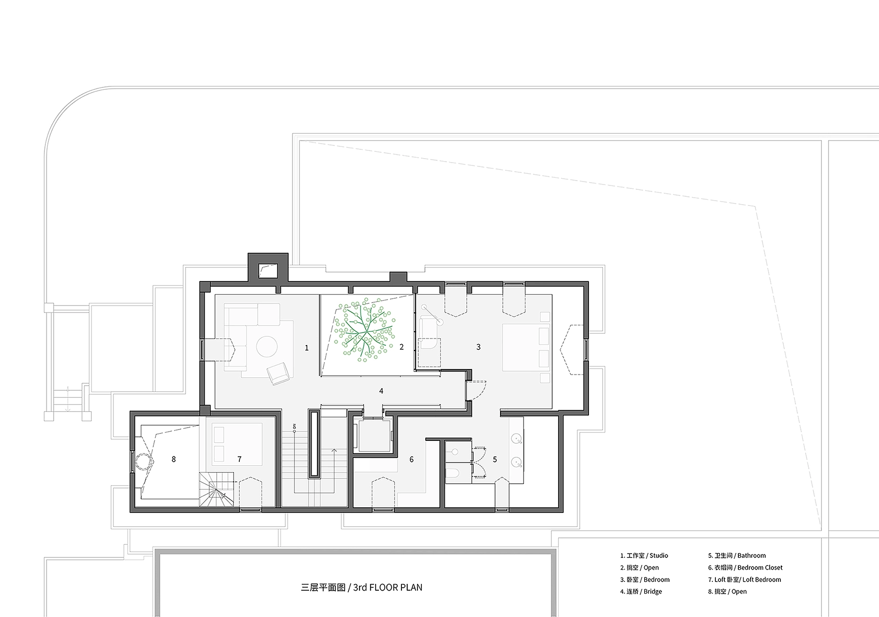
The once-enclosed top floor was opened and fitted with skylights, transforming it into a light funnel that allows sunlight to diffuse downward through the entire house.
This hierarchy of light defines the project’s spatial rhythm and unifies its vertical composition.
A Three-Dimensional Weaving of Garden Space
The double-height garden acts as the spatial heart of the house, with greenery forming a visual focus that links living, working, and resting areas. Together with the cantilevered glass box and the connecting bridge, it creates a dynamic sequence of spaces where views shift gradually as one moves through the house.
The third-floor studio and bedroom sit at opposite ends, joined by a suspended bridge that crosses above the garden. This layered composition heightens the sense of depth and continuity, while glass partitions blur the line between interior and exterior, turning the garden into a shared visual extension of every floor.
Vertically, the second-floor tea space, third-floor studio, and bedroom stack above the ground-floor living area, forming a composition that recalls the Eastern spatial idea of pavilion–platform–tower reinterpreted through contemporary structure and light.
Material as a Constructive Narrative
A unified material palette ensures spatial continuity: structural elements like the chimney, cantilevers, linked bridge, and staircases are clad in dark green terrazzo, forming a continuous structural spine that runs through the building. This matte mineral texture contrasts subtly with rough plaster walls, while the white plaster curved ceiling on the third floor becomes a canvas for diffused light. Material juxtapositions not only reinforce tectonic logic but also hint at the unique luminous qualities of each space.
The master bathroom continues the home’s dialogue of light and material. Vertical tiles wrap the curved wall, their gentle rhythm brought to life by soft, concealed lighting.
The interplay of texture and illumination creates a calm, fluid atmosphere, turning this private retreat into a quiet extension of the house’s ongoing experiment with light.
Artificial Light as Spatial Sculptor
Light is not merely cast — it is constructed. Here, artificial lighting becomes a sculptor of space, shaping form, atmosphere, and the rhythms of inhabitation.
On the third floor, the curved ceiling merges with angled walls, where wallwashing fixtures create a diffuse luminous curtain that cascades down to the garden.
Meanwhile, sunlight streaming through the skylight casts shifting patterns across floors, adding temporal depth to the architectural narrative.
While contemporary in form, the project draws on Eastern spatial principles—openness, layering, and the experience of gradual transition— reinterpreted through modern construction and daily living.
The result is a quiet yet expressive home where light becomes both structure and narrative.
Lightfall House
Nestled at the foot of the Yanshan Mountains in Beijing’s northern suburbs, the Lightfall House responds to the challenges of a typical stock residential layout—deep floor plans and limited natural light—by redefining the relationship between indoors and outdoors.
Through careful sectional design and a layered approach to light, the architects maximize natural illumination and spatial fluidity, turning a conventional house into a vertical study of light and space.
Location | Beijing, China
Programme | Private Residence
Client | Confidential
Work Scope | Interior Design: Concept, SD, DD, CD, CA
Current Status | Completed
Layered Light: A Vertical Experiment
Natural light serves as the project’s primary spatial strategy. Organized along a vertical axis, the interior is divided into “core daylight zones” and “passive diffusion areas” based on light intensity and function.
Highly frequented areas such as the dining area, kitchen, and master bedroom are positioned along the southern edge, engaging directly with a sunken courtyard.
A double-height indoor garden on the second floor acts as a vertical light well, functioning as a “vessel of illumination” that connects all levels.
The once-enclosed top floor was opened and fitted with skylights, transforming it into a light funnel that allows sunlight to diffuse downward through the entire house.
This hierarchy of light defines the project’s spatial rhythm and unifies its vertical composition.
A Three-Dimensional Weaving of Garden Space
The double-height garden acts as the spatial heart of the house, with greenery forming a visual focus that links living, working, and resting areas. Together with the cantilevered glass box and the connecting bridge, it creates a dynamic sequence of spaces where views shift gradually as one moves through the house.
The third-floor studio and bedroom sit at opposite ends, joined by a suspended bridge that crosses above the garden. This layered composition heightens the sense of depth and continuity, while glass partitions blur the line between interior and exterior, turning the garden into a shared visual extension of every floor.
Vertically, the second-floor tea space, third-floor studio, and bedroom stack above the ground-floor living area, forming a composition that recalls the Eastern spatial idea of pavilion–platform–tower reinterpreted through contemporary structure and light.
Material as a Construction Narrative
A unified material palette ensures spatial continuity: structural elements like the chimney, cantilevers, linked bridge, and staircases are clad in dark green terrazzo, forming a continuous structural spine that runs through the building.
This matte mineral texture contrasts subtly with rough plaster walls, while the white plaster curved ceiling on the third floor becomes a canvas for diffused light.
Material juxtapositions not only reinforce tectonic logic but also hint at the unique luminous qualities of each space.
The master bathroom continues the home’s dialogue of light and material. Vertical tiles wrap the curved wall, their gentle rhythm brought to life by soft, concealed lighting.
The interplay of texture and illumination creates a calm, fluid atmosphere, turning this private retreat into a quiet extension of the house’s ongoing experiment with light.
Artificial Light as Spatial Sculptor
Light is not merely cast — it is constructed. Here, artificial lighting becomes a sculptor of space, shaping form, atmosphere, and the rhythms of inhabitation.
On the third floor, the curved ceiling merges with angled walls, where wallwashing fixtures create a diffuse luminous curtain that cascades down to the garden.
Meanwhile, sunlight streaming through the skylight casts shifting patterns across floors, adding temporal depth to the architectural narrative.
Floor Plans
While contemporary in form, the project draws on Eastern spatial principles—openness, layering, and the experience of gradual transition— reinterpreted through modern construction and daily living.
The result is a quiet yet expressive home where light becomes both structure and narrative.