Piccolo 52
Location
Beijing, China
Programme
Restaurant
Client
Piccolo 52
Work Scope
Interiors – Concept, SD, DD,
CD, CA, Graphic Design
Current Status
Completed
Warm terrazzo takes center stage inside Piccolo 52, a compact Italian cafe tucked within a bustling urban mall in Beijing, China. The material, rooted in Italian craftsmanship, anchors the space with color and familiarity while expressing a modern sensibility. Its soft orange tone, reminiscent of ripe tomatoes and sunlit courtyards, sets the mood for relaxed, everyday dining.
Warm terrazzo takes center stage inside Piccolo 52, a compact Italian cafe tucked within a bustling urban mall in Beijing, China.
The material, rooted in Italian craftsmanship, anchors the space with color and familiarity while expressing a modern sensibility.
Its soft orange tone, reminiscent of ripe tomatoes and sunlit courtyards, sets the mood for relaxed, everyday dining.
To bring a sense of openness, the shopfront was designed like a small courtyard — framed in stainless steel, lined with plants and terrazzo benches, spilling into the mall’s walkway. This in-between space blurs the boundary between the restaurant and the mall. It evokes the atmosphere of an open-air café within an enclosed setting, allowing diners to relax while staying connected to the buzz.
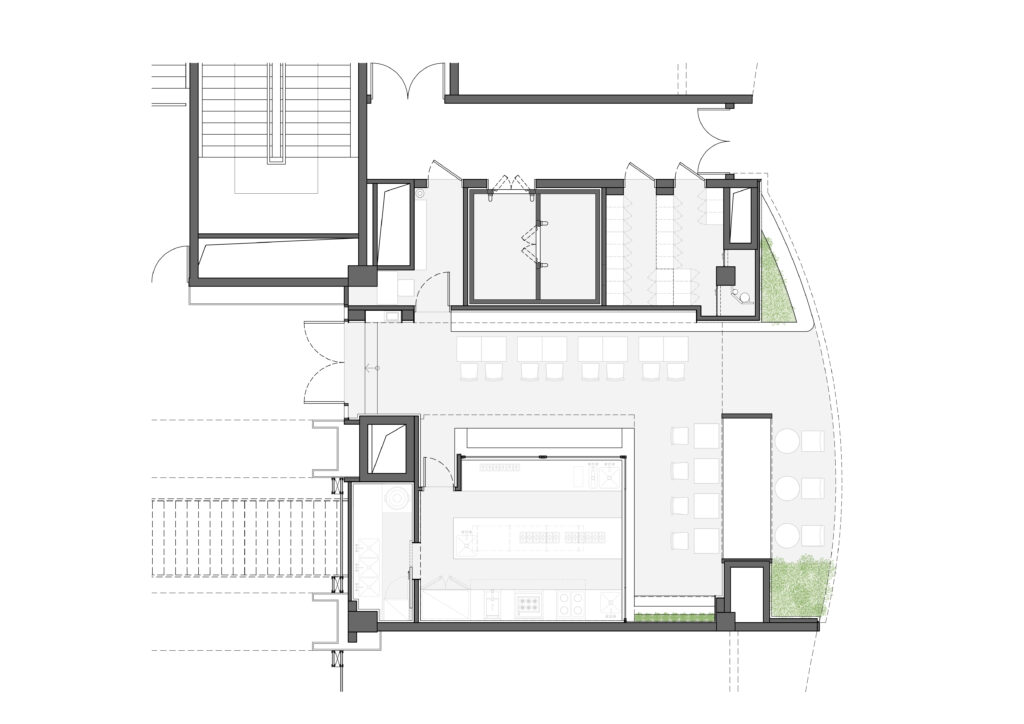
Define the compact 120sqm shop boundary within the mall.
Organize the layout into three functional zones – dining area, kitchen and shared BOH area.
Differentiate the dining area into a courtyard zone and interior seating, establishing clear circulation
Frame the shopfront to articulate the threshold between inside and out, creating a visual portal into the restaurant.
Open the kitchen as the heart of the space, enriching spatial experience and allowing guests to connect with the cooking process.
Activate the environment with greenery, bringing vibrancy and a relaxed sense of life to the interior.
To bring a sense of openness, the shopfront was designed like a small courtyard — framed in stainless steel, lined with plants and terrazzo benches, spilling into the mall’s walkway. This in-between space blurs the boundary between the restaurant and the mall. It evokes the atmosphere of an open-air café within an enclosed setting, allowing diners to relax while staying connected to the buzz.
A mall is an extension of the city streets
Kitchen as a way of an Italian life
Inside, the space centers around an open kitchen, where guests can see the tossing of pasta, the searing of seafood, and feel the pulse of the kitchen. The client’s aim was simple: an intimate, unpretentious environment where you feel like a guest in someone’s home courtyard.
Next to the kitchen sits a bespoke terrazzo sideboard, designed to showcase fresh salads, soups, and drinks. The display celebrates the immediacy of the ingredients — colorful, accessible, and central to the dining experience.
A Material Conversation
The material palette draws from the textures and colors of Italian daily life: rough grey masonry blocks, sheen tomato-toned terrazzo, and brushed stainless steel form a tactile and visual dialogue between rawness and refinement. Lush planting introduces softness and vibrancy to the composition.
A Touch of Playfulness
Finally, hand-drawn LED illustrations — tuna greeting diners with “Ciao!”, swirling noodles, and clinging glasses — infuse the space with humor and personality, celebrating the restaurant’s focus on simple, honest food and genuine hospitality.
Design to Unwind
At its core, the project reflects our belief in creating spaces that let people slow down and breathe within the city. Even in tight, enclosed interiors, the goal is the same — to design places of ease and warmth where people can pause, unwind and connect.
“I try to design buildings that put people at ease, to make them feel good.”
– Peter Zumthor Pritzker prize interview 2009
Piccolo 52
Warm Terrazzo Evoking Modern Italian Dining
Warm terrazzo takes center stage inside Piccolo 52, a compact Italian cafe tucked within a bustling urban mall in Beijing, China. The material, rooted in Italian craftsmanship, anchors the space with color and familiarity while expressing a modern sensibility. Its soft orange tone, reminiscent of ripe tomatoes and sunlit courtyards, sets the mood for relaxed, everyday dining.
Location | Beijng, China
Programme | Restaurant
Client | Piccolo 52
GFA | 120m2
Work Scope | Interiors – Concept, SD, CD, CA, Graphic Design
Current Status | Completed
Consultants | Southwest Municipal Design Institution, BW Landscape Chengdu
From Constraints to Character
Nestled inside a busy shopping mall, the restaurant transforms constraints into character. With nearly one-third of its compact footprint ceded to back-of-house operations linked to its sister restaurant upstairs, the design confronted low ceilings, exposed ducts, and narrow circulation from the start.
To bring a sense of openness, the shopfront was designed like a small courtyard — framed in stainless steel, lined with plants and terrazzo benches, spilling into the mall’s walkway. This in-between space blurs the boundary between the restaurant and the mall. It evokes the atmosphere of an open-air café within an enclosed setting, allowing diners to relax while staying connected to the buzz.
A mall is an extension of city streets.
Kitchen as a Way of an Italian Life
Inside, the space centers around an open kitchen, where guests can see the tossing of pasta, the searing of seafood, and feel the pulse of the kitchen. The client’s aim was simple: an intimate, unpretentious environment where you feel like a guest in someone’s home courtyard.
Next to the kitchen sits a bespoke terrazzo sideboard, designed to showcase fresh salads, soups, and drinks. The display celebrates the immediacy of the ingredients — colorful, accessible, and central to the dining experience.
A Material Conversation
The material palette draws from the textures and colors of Italian daily life: rough grey masonry blocks, sheen tomato-toned terrazzo, and brushed stainless steel form a tactile and visual dialogue between rawness and refinement. Lush planting introduces softness and vibrancy to the composition.
A Touch of Playfulness
Finally, hand-drawn LED illustrations — tuna greeting diners with “Ciao!”, swirling noodles, and clinging glasses — infuse the space with humor and personality, celebrating the restaurant’s focus on simple, honest food and genuine hospitality.
Design to Unwind
At its core, the project reflects our belief in creating spaces that let people slow down and breathe within the city. Even in tight, enclosed interiors, the goal is the same — to design places of ease and warmth where people can pause, unwind and connect.
“I try to design buildings that put people at east, to make them feel good.”
— Peter Zumthor, Pritzker Prize Interview 2009
Share this project!